Prodej
Hledáte dům v jedné z nejžádanějších lokalit Prahy, který si můžete přetvořit podle svých představ? Na klidném místě pražských Malvazínek, v ulici Na Pláni, nabízíme cihlový řadový dům se čtyřmi byty a zahradou, který čeká na nového majitele s vizí.
18.500.000,- Kč
Aktivní nabídka
Domluvit si prohlídku
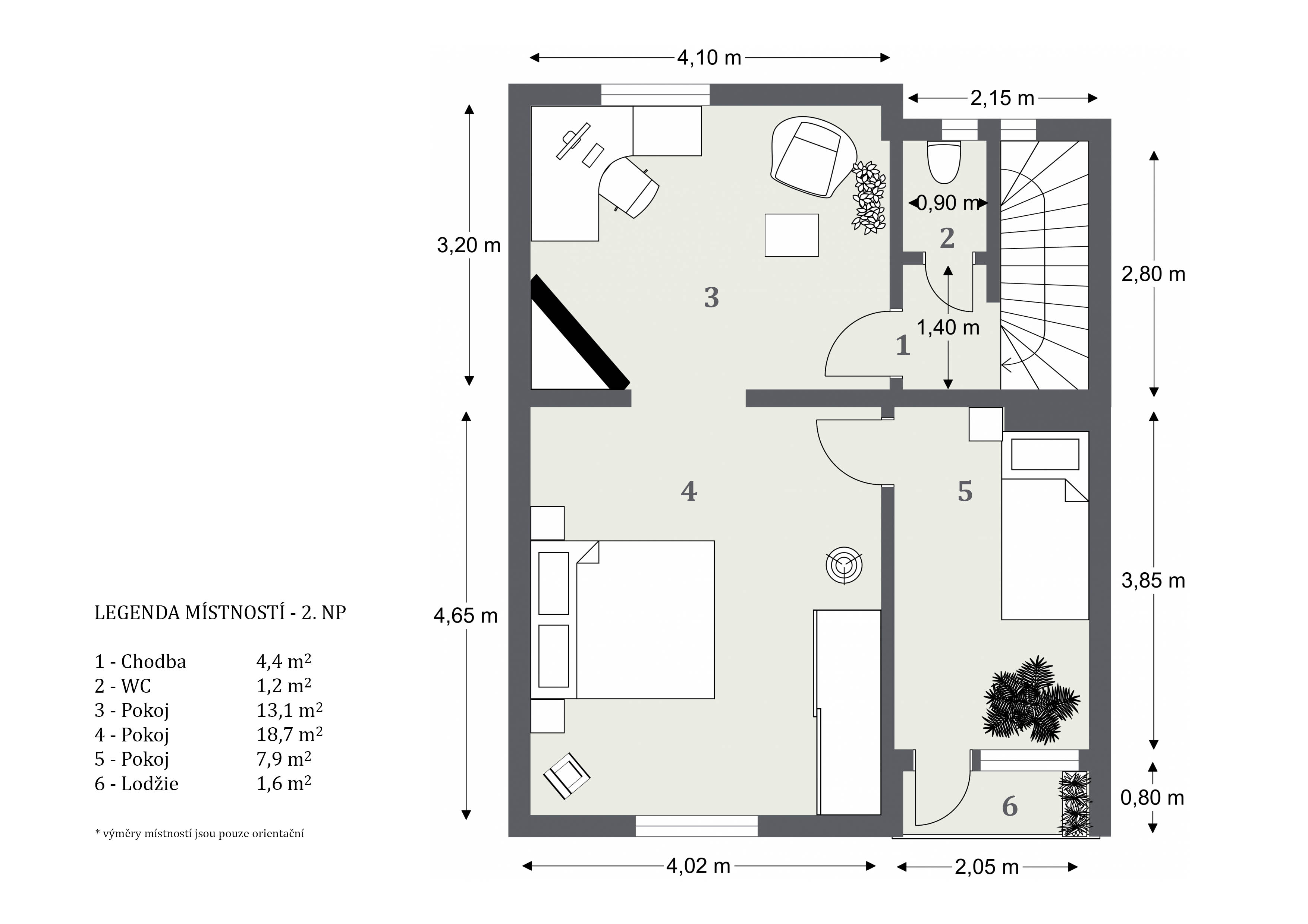
Dům Praha 5 Malvazinky
Dům má čtyři podlaží a na každém z nich je samostatná bytová jednotka – ideální příležitost pro vícegenerační bydlení, investici či kombinaci vlastního zázemí a pronájmu.
Dům je umístěn na západním, prosluněném svahu, a nabízí tak dostatek světla po celý den. Za domem se nachází menší zahrada o rozloze cca 100 m², před domem pak předzahrádka (cca 36 m²)
Stav domu odpovídá jeho stáří a vyžaduje kompletní rekonstrukci – to je však právě jeho největší výhoda. Můžete jej přestavět na čtyři moderní byty, proměnit v prostorné rodinné sídlo, nebo třeba vytvořit reprezentativní sídlo společnosti. Předzahrádku lze přebudovat na 2 parkovací stání.
Dům je napojen na všechny inženýrské sítě – vodovod, kanalizaci, elektřinu i plyn.
V minulosti byl využíván jako mezonetové rodinné bydlení (5+1) s odděleným bytem 1+1 pro pronájem a 1+kk v suterénu sloužícím jako dílna a prádelna.
Malvazinky jsou vyhledávanou pražskou lokalitou – klidné ulice, dostatek zeleně, výborná dopravní dostupnost a kouzlo původní vilové čtvrti činí z této adresy ideální místo pro komfortní městské bydlení.
Energetický štítek
Kde se nemovitost nachází?
Prozkoumejte jak vypadá okolí tam, kde možná budete doma.
Chcete se o nemovistosti dozvědět více?

Newsletter
Nenechte si ujít nejnovější nabídku atraktivních nemovitostí a aktuality ze světa realit.