Pronájem
Představte si širší centrum města, všechna důležitá místa nadosah, zastávka MHD přímo před domem. Máte? Obslužnost bez auta, i když parkovacích míst je dostatek. Prostorné byty a krásné bydlení přímo v místech, odkud je to jen "pár kroků" k veškeré kultuře, gastronomii a práci na jednu stranu, k přírodě a sportu na stranu druhou. Máte?
PRONAJATO
Pronajato
Domluvit si prohlídku
1+kk Brno-Auerswaldova 406
1+kk
elektřina v bytě 900,-Kč
voda studená 415,- Kč
voda teplá 368,- Kč
teplo 594,- Kč
elektřina spol. prostor 53,- Kč
provoz výtahu 69,-Kč
úklid spol. prostor 91,- Kč
Celkem * 2.490,-Kč
* celková částka se může lišit v závislosti na počtu osob, skutečné spotřebě energií a vývoji jejich cen)
Tak přesně to vám nabídne residence Auerswaldova. Městské bydlení s obrovským potenciálem do budoucna. Celý projekt je mimořádně zajímavou příležitostí pro zájemce, kteří souzní s pulzem centra Brna.
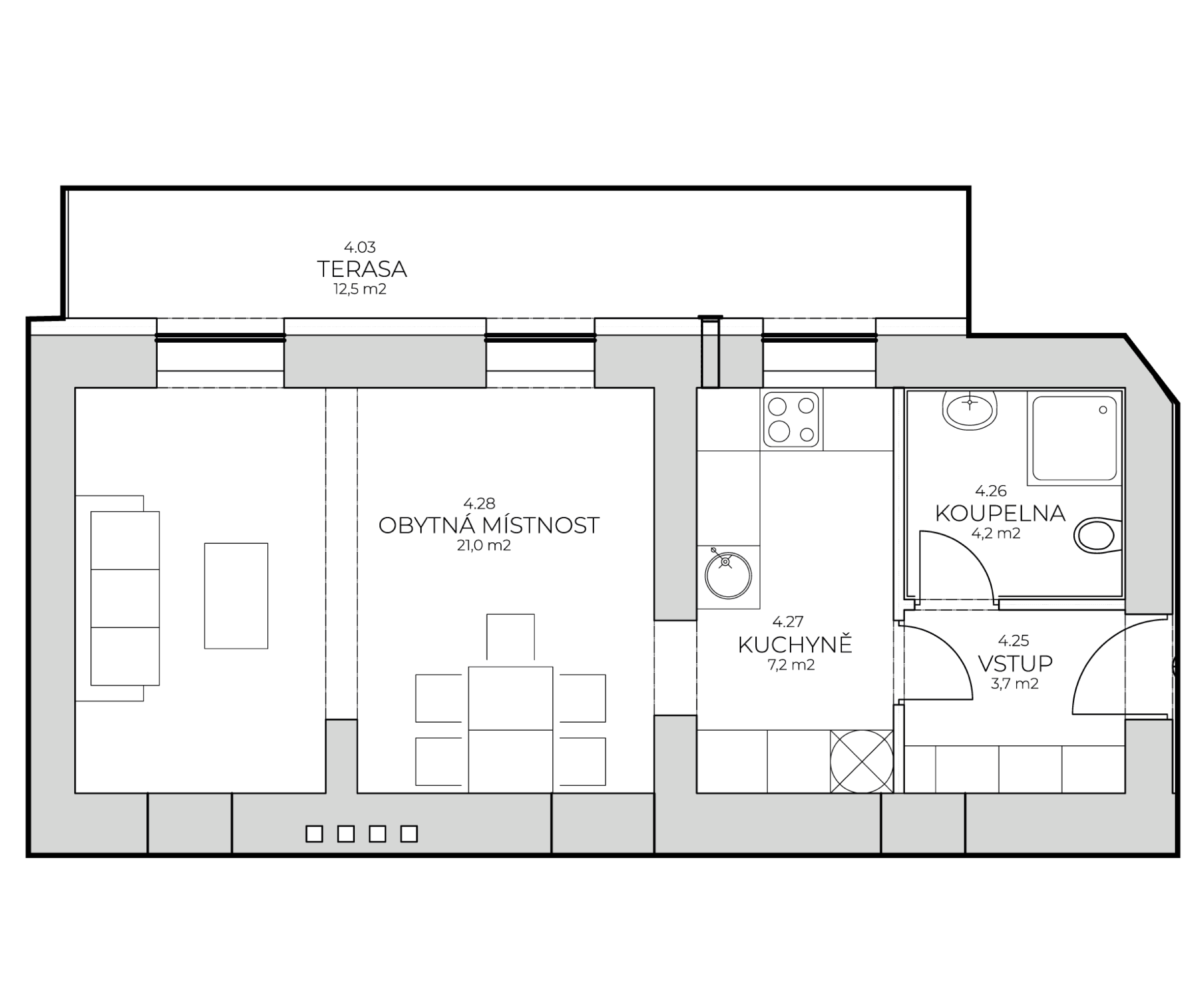
K pronájmu vám nabízíme kompletně vybavený byt o velikosti 1+kk a rozloze 38,4m2. Navíc s prostorným, 12,5m2 velkým balkonem se vstupem do obou místností, který podtrhne rozmanitost malého bytu a v teplých měsících může sloužit jako další pokoj.
V bytě se nachází vybavená kuchyně (lednice, varná deska, trouba, digestoř, myčka) i koupelna s WC (pračka, sušička a veškeré zařizovací předměty). V pokojích pak stůl se židlemi, TV, šatní skříně a postel, pohovka...
Součástí bytu je sklepní kóje. V okolí domu lze bez problému parkovat.
K dispozici od 1.6.2025
Kde se nemovitost nachází?
Prozkoumejte jak vypadá okolí tam, kde možná budete doma.
Chcete se o nemovistosti dozvědět více?

Newsletter
Nenechte si ujít nejnovější nabídku atraktivních nemovitostí a aktuality ze světa realit.